=
R38の外観写真

Honeycomb Series ハニカム R38

寝室と洗面所は互いに干渉せず、キャビンは透明感に溢れています。
 床から天井まで届く大きな窓の前に立ち、両手を広げて太陽の温もりを感じ、
 穏やかな暮らしの幸せを体感してください。

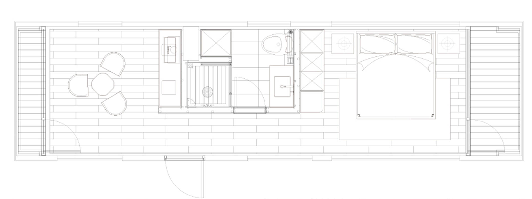
Floor planフロアプラン(参考)

間取り
ベッドルーム2室、バスルーム1室、バルコニー2つ
長さ×幅×高さ
11.0m×2.95m×3.4m
建築面積
32.5㎡

参考価格1,440万円

R38のフロアマップ
  • R38の内観写真
  • R38の内観写真
  • R38の内観写真

一覧にもどる